彬野起重机械(上海)有限公司
服务热线:4008 292 822
联系人:丁先生
手机:188 1775 2361
传真:021-5995 1268
邮箱:sales@bnyel.com
网址:www.bnyel.cn
地址:上海市嘉定区汇仁路1800号
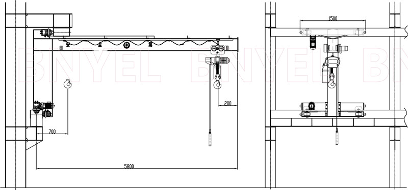
产品名称:壁行式悬臂吊
型号:BXD
起重量:0.5-10T
臂长:2-10m
工作级别:A3、A4、A5、A6
高效率,性价比高,占空间小
壁行式悬臂吊是机械制造、装配车间的专用机械,它利用布置在多层装配车间墙壁上的轨道,在墙壁上行走,可以充分利用车间的空间结构,节约了生产场地,作业灵活。壁行机按主梁结构分但主梁和双主梁两种形式,但主梁结构小车使用电动葫芦,双主梁小车结构有牵引小车形式和标准小车形式两种。运行轨道尺寸可以根据用户要求设计。
壁行式旋臂起重机(简称:壁行吊,又称壁行式悬臂吊、壁行式旋臂吊、壁行式悬臂起重机)。是凯力起重公司在壁柱式悬臂起重机的基础上研制的一种新型物料吊运设备。该机行走道轨安装在厂房的水泥柱上,沿着道轨可做纵向运动,同时电动葫芦又可完成沿悬臂的横向运动以及垂直方向的起吊。壁行式旋臂起重机极大的扩展了作业范围,更为有效的利用了厂房空间,使用效果更加理想。可广泛利用于厂矿、车间的生产线、装配线和机床的上下活及仓库、码头等场合的重物吊运。
壁行式旋臂起重机是一种可沿墙上或其他支承结构上的高架轨道运行的悬臂起重机。
壁行式旋臂起重机的使用场合为跨度较大、建筑高度较大的车间或仓库,靠近墙壁附近处吊运作业较频繁时较适合。壁行式旋臂起重机多与上方的梁式或桥式起重机配合使用,在靠近墙壁处服务于一长方体空间,负责吊运轻小物件,大件由梁式或桥式起重机承担。

![]()

总体
优化设计,结构轻,符合欧洲标准
扁电缆托令系统供电,运行平稳,操作方便
品种多样,满足不同需求,起重量达到5t
环氧富锌油漆,漆膜附着力强,十年以上寿命,中黄RAL1028
起重机操作模式
手电门
操作简便,无需设置专业驾驶员
双挡按钮
跟随式或独立滑道非跟随式悬挂
防护等级为IP65
寿命50万次
遥控
操作简便,无需设置专业驾驶员,操作者在地面自由度大
几万组频点,互不干涉
双挡按钮或摇杆式操纵杆
防护等级为IP65
寿命50万次
起重机速度
起升
通常采用双速,造价低,冲击小,节能,定位精确
IP55 / F 等级
小车运行
手动或变频调速,运行平稳,噪音小,有效防止重物的晃动
IP54 / F 等级